+385 91 213 6622

+385 91 737 6311

bib.nekretnine@gmail.com

250 000 € (1 883 625 kn)

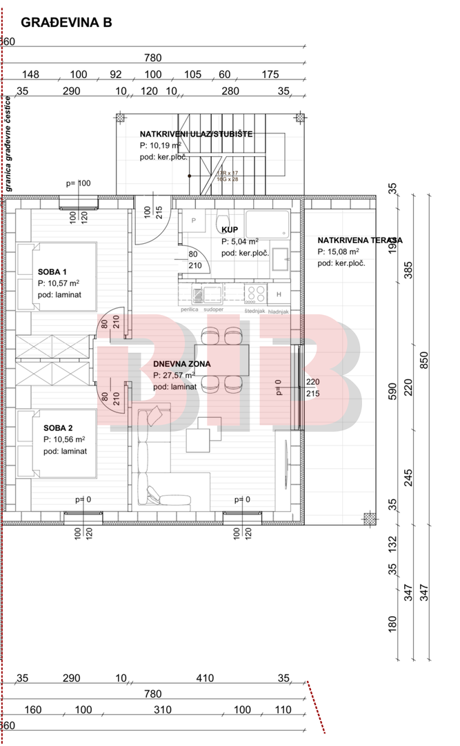
Stan-apartman se sastoji od dvije spavaće sobe,dnevnog boravka sa kuhinjom i blagovaonicom,kupaonice,natkrivene terase,natrkrivenog ulaza i stubišta,vrta-okućnice površine 35m2,te pripadajućeg parkinga.

Mirna lokacija,more na cca 500 metara.

Kupac oslobođen plaćanja poreza na promet


Šifra objekta:
iro-2859
Lokacija:
Dobrinj, Čižići (51514)
Kvadratura:
63,50 m2
Energetski razred:
A
Broj soba:
3
Tip stana:
2S+DB
Broj spavaćih soba:
2
Broj kupaonica:
1
Ukupno katova:
2
Godina izgradnje:
2025
Grijanje:

Klima

Instalacije:

Struja

Voda

Kanalizacija

Ova stranica ostavlja "kolačiće" na Vašem kompjutoru za potrebe navigacije i anonimizirane statistike pristupa. Korištenjem ove stranice prihvaćate i potvrđujete ove "kolačiće".